Сертифікована для "пасивного будинку" накладна конструкція на сталеву (ST) і дерев'яну (TI) підконструкції має чудові технічні характеристики
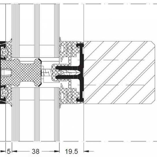
Ця фасадна система дозволяє легко створювати світлопрозорі дахи та великоформатні вертикальні фасади на рівні стандарту "пасивного будинку". Коефіцієнт Uf для системної конструкції досягає значення до 0,8 Вт/(м²К) (з урахуванням впливу кріпильних шурупів) для сталі та дерева, що відповідає найсуворішим вимогам Інституту пасивного будинку в Дармштадті. Накладна конструкція Schüco AOC з системною шириною 50 мм, 60 мм і 75 мм для сталі (ST) і дерева (TI) поєднує в собі енергетичну ефективність, раціональне виробництво та монтаж. У зоні даху, до якої пред'являються спеціальні вимоги, інноваційна система ущільнювачів забезпечує максимальний рівень теплоізоляції та оптимальну переробку завдяки вбудованому гвинтовому каналу. Для нової накладної конструкції AOC при виготовленні двокамерних склопакетів тепер не існує проблеми утримання навантажень від великої ваги скла завдяки використанню інноваційних запатентованих системних артикулів.
Переваги
- Накладна конструкція системною шириною 50 мм, 60 мм і 75 мм (починаючи з 05/2013) на сталі та дереві
- для реалізації світлопрозорих дахів і вертикальних фасадів
- Теплоізоляція вертикальних фасадів і даху на рівні стандарту "пасивного будинку"
- Три дренажні рівні для більшої гнучкості системи при водовідведенні
- Утримання великих навантажень від склопакета до 11 кН для сталі та 7,3 кН для дерева при використанні системних артикулів
- Сумісність з вбудованими фотогальванічними модулями





